Η αποκατάσταση των Κήπων του Ανακτόρου, στο πρώην βασιλικό κτήμα Τατοΐου, προχωρεί στο πλαίσιο του συνολικού σχεδιασμού αποκατάστασης και ανάδειξης του Τατοΐου, ενημερώνει το υπουργείο Πολιτισμού και Αθλητισμού σε ανακοίνωσή του. Σύμφωνα με το ΥΠΠΟΑ, κεντρική ιδέα της μελέτης, επί της οποίας γνωμοδότησε ομοφώνως θετικά το Κεντρικό Συμβούλιο Νεωτέρων Μνημείων (ΚΣΝΜ), είναι η αποκατάσταση των Κήπων με βάση τις αρχικές χαράξεις τους, αλλά και τις σύγχρονες αρχές πυροπροστασίας και βιωσιμότητας.

«Η αποκατάσταση και ανάδειξη των Κήπων του Ανακτόρου εντάσσονται στον συνολικό σχεδιασμό του υπουργείου Πολιτισμού και Αθλητισμού για την αποκατάσταση και ανάδειξη του ιστορικού πυρήνα του Τατοΐου, στο πλαίσιο της στρατηγικής αξιοποίησής του, ως μνημειακού συνόλου. Η ιστορική τεκμηρίωση, το θεσμικό πλαίσιο για τη διατήρηση και αποκατάσταση των ιστορικών Κήπων, τα τοπογραφικά χαρακτηριστικά, η χρήση κατάλληλου φυτικού υλικού, προσαρμοσμένου στο μικροκλίμα και ανθεκτικού στη φωτιά, αλλά και η χρήση υλικών με βάση τις αρχές της αναστρεψιμότητας και της βιωσιμότητας, αποτελούν βασικές παραμέτρους του σχεδιασμού της μελέτης αποκατάστασης. Οι Κήποι αναβιώνουν, ως σημαντικό μέρος της χωροταξικής σύνθεσης και της ζωής στο π. βασιλικό ενδιαίτημα, αλλά και της εμπειρίας του σημερινού επισκέπτη», δήλωσε η υπουργός Πολιτισμού και Αθλητισμού, Λίνα Μενδώνη.

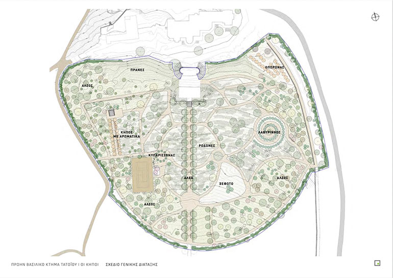
H θέση των Κήπων βρίσκεται νότια του κτηριακού συνόλου του Ανακτόρου και των Μαγειρείων και σε άμεση γειτνίαση με την Πύλη της Λεύκας. Το βορειότερο επίπεδο των Κήπων βρίσκεται στην υψηλότερη στάθμη περιλαμβάνοντας τις διαμορφώσεις που συνδέονται άμεσα με το Ανάκτορο. Από τη στάθμη αυτή ξεκινά η διπλή πλατιά μαρμάρινη σκάλα, σε συμμετρική διάταξη, για την πρόσβαση στην κατώτερη στάθμη των Κήπων. Το αμέσως χαμηλότερο επίπεδο που περιλαμβάνει την ελλειψοειδή κρήνη και την κολυμβητική δεξαμενή κατασκευάστηκε τη δεκαετία του 1950. Από τη στάθμη αυτή και κάτω, διαμορφώνεται η κεντρική Αλέα των Κήπων, η οποία έχει σημαντικό ρόλο στη χωρική οργάνωση των Κήπων, ενώ εκατέρωθεν, διαμορφώνονται μονοπάτια διατεταγμένα σε ομόκεντρους κύκλους. Στις θέσεις, όπου διασταυρώνονται οι εγκάρσιες πορείες με την κυκλική διάταξη, προκύπτουν επιμέρους κυκλικοί κόμβοι. Εντοπίζεται κι ένας επιπλέον κόμβος στο κέντρο της σπείρας, ως απόληξη της διαδρομής στον Λαβύρινθο. Κεντρικά και ανατολικά της Αλέας, ο σχεδιασμός υποστηρίζει την λογική του περιπάτου. Στον τομέα, στα δυτικά της Aλέας, χωροθετούνται χρηστικές λειτουργίες όπως το θερμοκήπιο και το γήπεδο τένις.

Όπως ενημερώνει η ανακοίνωση του ΥΠΠΟΑ, η περιοχή επέμβασης της μελέτης περιλαμβάνει έκταση 34 στρεμμάτων και περιμέτρου 762 μέτρων. Ο ρόλος των δένδρων είναι πολύ σημαντικός στη σύνθεση του φυτικού υλικού. Φυτεύονται περίπου 450 δένδρα. Τα μονοπάτια ακολουθούν τις αρχικές χαράξεις, όπως αυτές υφίστανται και εντοπίζονται από τα ίχνη της οριοθέτησής τους. Η δημιουργία υδατοπερατών επιφανειών συμβάλλει στην ανάπτυξη της βιοποικιλότητας διασφαλίζοντας φυσικές συνθήκες στο περιβάλλον, ευνοώντας συγχρόνως την ανάπτυξη τοπικής χλωρίδας και πανίδας.
Η μελέτη αποκατάστασης των Κήπων του Ανακτόρου στο Τατόι εκπονείται από την Έλλη Παγκάλου και αποτελεί χορηγία της ΑΙΓΕΑΣ ΑΜΚΕ προς το υπουργείο Πολιτισμού και Αθλητισμού. Η υλοποίηση του έργου χρηματοδοτείται με 3.000.000 ευρώ από το Ταμείο Ανάκαμψης και Ανθεκτικότητας.
